Sitemap
 
 
 
   
Adhar Universal is proud to present what promises to be the finest in serviced apartments in New Delhi. Since we started in 1992, it has been our endeavor to provide state of the art living combined with impeccable services, assuring you the utmost convenience and comforts during your stay.
   
   
   
   
   
 

| Taj Apartments

 
 
The Taj Apartments are a one of its kind Serviced Apartments, built in a joint venture between Tata Housing and Adhar Universal. These apartments were launched under the name 'Parkwood Estate' but came to be popularly know as Taj Apartments due to their association with The Tata Group.
 
 

|Floor Plans

 

|Location Map

 
       
 
 
 

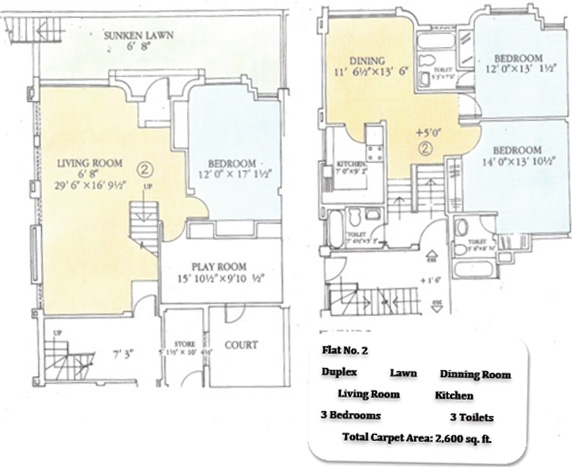
| Taj Apartments

     
Delhi
2,630 Sq.ft
Available for Lease
Delhi
2,600 Sq.ft
Available for Lease
Delhi
2,150 Sq.ft
Available for Lease
     
  Designed by: Innovativewebtechnologies